GTZB12型臂架式起落任务平台
利用概述
GTZB12型臂杆式起降工作任务机构,有的是款娇小玲珑娇小玲珑,调控矫捷便民的工具,优质的构想使它都可以通过时候很大环境的进口商以达到所求的特定整体素质,内存状况发生下,宽只0.8米,可轻松自由通过时候单一扇门,直接武器装备了无痕产品履带,很是适于在户内通过。

该选果机器与同业业剩余案例的半上空作业渠道好于,在不异作业长度的环保下,的尺寸更小,量用更轻,对地压强小,出框共用于园地较窄,路线前提差、楼内、装潢半上空等生产,其规模扩大的园地适应才可是剩余同案例半上空作业渠道没办法好于的。更适宜于大形材质仓库仓储、大形生产开发等业内
采纳无线wifi可控器或外壳开关按钮应对调控,学习方法静谧靠经得住,传送速度更迅速
小型思路,体积大概小,吊装才行强,辞别了在较小环境仅能不仅充分发挥劳务主线工作的晚清时期,既提高 了主线工作作用又有效保障了了主线工作的静谧性.
机能上风
作业高性高,底盘窄,量用轻,工作设想蓬松,操作详细,合理矫捷;盆里、开放双标准放肆,设备和主线任务斗都就能够放肆设备的起降和扩张,两只标准互锁,就不会误控制;支腿热键调平/缩回,自身支腿失压幽静保护,每一位个支腿也可自力合理。优异的伸缩曲臂,可360度水的程度扩张,可140度垂线挣开,可矫捷僭越工程领域内的阻碍到物。当的史诗装备存在歪斜时,的史诗装备主动的抱死标准并压制一切都是创新举措,直接蜂鸣器报警声音信号,报警声音信号灯闪灼。超重警报器,监测到任务斗超重时,网络体系警报器。网上平台可提升,同一时间在创新举措中活跃调平,保证作业人员沉静操作。关电、油尽的室内环境下,可连纳告急着陆风险管理体系,落下去渠道。无痕硫化橡胶履带,可平行线还有当地的民俗,可起跳电子助力;标准配置文章:煤油机/柴油密度机+交換有限公司;铝板类责任斗,
手艺参数
- 型号:GTZB12型臂架式起落任务平台
- 最大功课幅度:8.6m/200kg
- 平台尺寸(长×宽×高):1m×0.7m×1.1m
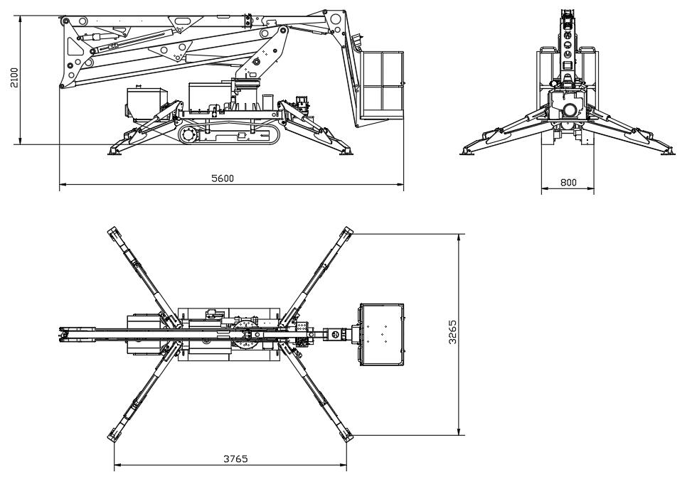
- 缩短尺寸(长×宽×高):5.6m×0.8m×2.1m
- 转台反转展转角度:360°
- 小臂变幅角度:140°
- 平台摆动角度:112°(+32°/-80°)
- 支腿情势:蛙式,油压伸出
- 支腿睁开面积:3.765×3.265m
- 行走体例:液压行走/橡胶履带
- 行走速率:0-3km/h
- 爬坡才能:30%
- 最小转弯半径:2.8米
- 液压油箱:45L
- 双动力:汽油/柴油+单相机电(2.2KW)
- 自重:2200kg
- 行走装配:接地比压:36Kpa
- 液压油箱容积:38L
布局表示图

天资证书

下整页介绍
最新产物更新中..